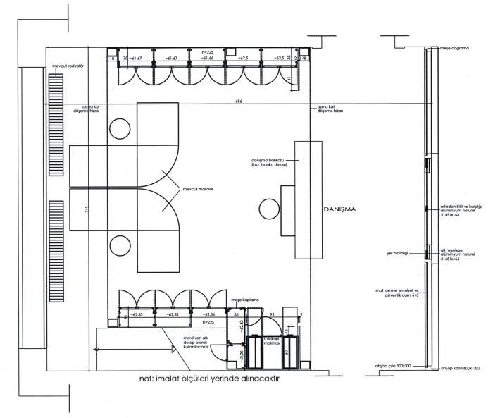
YTÜ Mimarlık Fakültesi, Fakülte Sekreterliği iç mekanı ve giriş cephesinin yeniden düzenlenmesi çalışması kapsamında aşağıdaki çalışmalar yapılmıştır.
The following studies were carried out within the context of the work of rearrangement of interior space and entrance façade of faculty secretariat of Yildiz Technical University Faculty of Architecture.


Fakülte Sekreterliği Giriş Cephesi Tasarımı / Faculty Secretariat Entrance Façade Design

Fakülte Sekreterliği İç Mekan Tasarımı / Faculty Secretariat İnterior Design

İç Mekan SketcUp Perspektifler / Interior Space SketchUp Perspectives